Place de Cornavin 3, CP 1539, 1211 Genève 1

Phone +41 22 704 19 00

 

info@gerances.ch

Opening hours

 

Monday 08h30 – 12h30 / 13h30 – 17h
Tuesday 08h30 – 12h30 / 13h30 – 17h
Wednesday 08h30 – 12h30 / 13h30 – 17h
Thursday 08h30 – 12h30 / 13h30 – 17h
Friday 08h30 – 12h30 / 13h30 – 17h
Saturday Closed

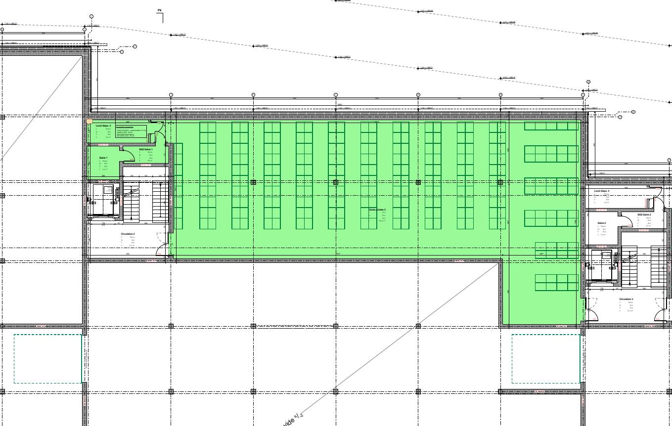
Industrial surface

Suisse, Rive Droite (lac) | Versoix
Description
Reference:
I-VER-387
Surface Range:
387 m2
Usable area:
387 m2
State:
New
Price m2:
CHF 190.-
Monthly charges:
CHF 439.-
Address
Route des Fayards 280
1290 Versoix
On the map
CHF 6'128.-
Property agent
Jean-luc Casini
Contact agent