Charmant logement de 5 pièces au 1er étage d'un immeuble sécurisé proche de toutes commodités.
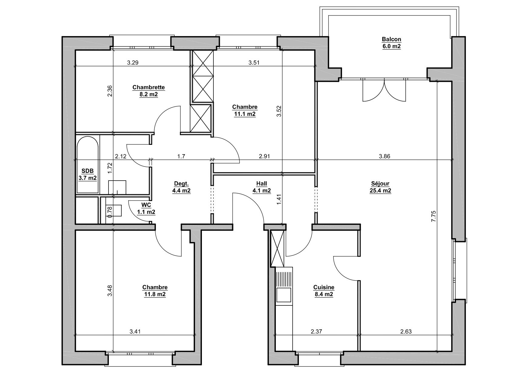
Cet appartement d'environ 80m2 se compose comme suit :
- Un hall d'entrée
- Une cuisine équipée d’un four, cuisinière et hotte
- Une belle pièce à vivre donnant accès au balcon
- Trois chambres à coucher dont deux disposent de rangements
- Une salle de bains
- Un WC séparé
- Une cave en sous-sol.
A noter qu'une place de parc complète ce bien, le loyer étant de CHF 100.- en sus du loyer de l'appartement.
Situé à Châtelaine, proche de Charmilles et Vernier, l’appartement bénéficie d’un cadre calme et urbain.
• Transports : bus 6, 10, 19 vers centre-ville et gare Cornavin
• Écoles, crèches, commerces, restaurants à proximité
• Espaces verts accessibles à pied
• Accès rapide à l’autoroute et à l’aéroport