Place de Cornavin 3, CP 1539, 1211 Genève 1

Tél. +41 22 704 19 00

 

info@gerances.ch

Horaires d’ouverture

Lundi 08h30 – 12h30 / 13h30 - 17h
Mardi 08h30 – 12h30 / 13h30 - 17h
Mercredi 08h30 – 12h30 / 13h30 - 17h
Jeudi 08h30 – 12h30 / 13h30 - 17h
Vendredi 08h30 – 12h30 / 13h30 - 17h
Samedi Fermé

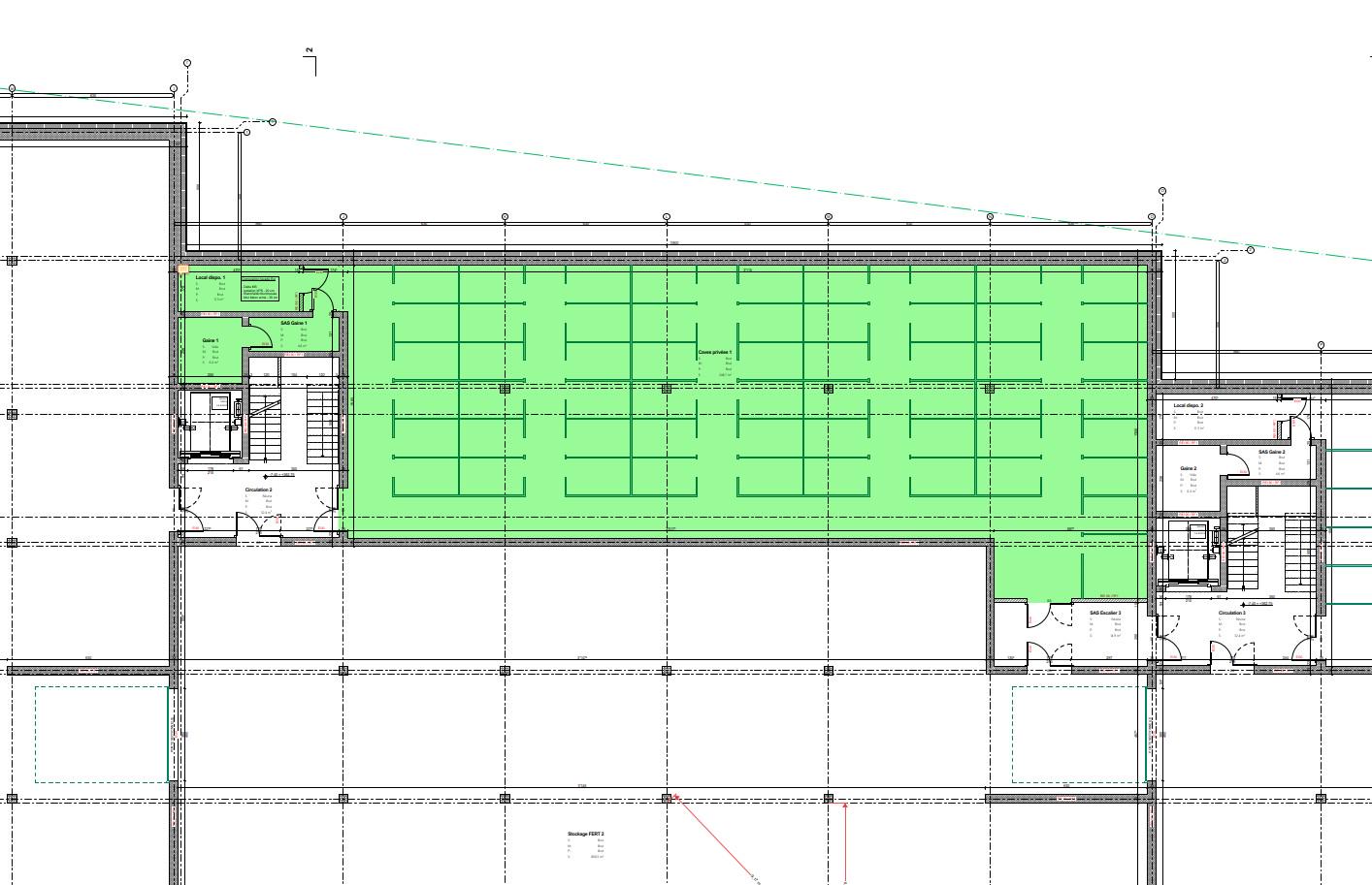
VERSOIX - Surface de Stockage Moderne d'env. 371 m² à Louer

Suisse, Rive Droite (lac) | Versoix
Description
Référence:
I-VER-371
Surfaces:
371 m2
Surface utile:
371 m2
État:
Neuf
Prix au mètre:
CHF 190.-
Charges mensuelles:
CHF 464.-
Description
Surface de stockage fonctionnelle et sécurisée idéale pour les entreprises ayant besoin d'espace supplémentaire pour stocker marchandises, équipements ou archives.
Située dans un secteur stratégique, à l'entrée de Versoix, facilement accessible par l'autoroute, les transports publics et les solutions de mobilité douce.

Caractéristiques de l’Espace :
• Superficie : env. 371 m²
• Hauteur sous plafond : 3.40 m
• Charge au sol : 2'000 kg/m² – Parfait pour le stockage de matériel lourd
• Accès camion : Possibilité d'accès de plain-pied pour camions jusqu’à 40T, au 2éme sous-sol
• Portes sectionnelles : 360 x 460 cm
• Monte-charges : 2 monte-charges de 1,6T avec accès depuis le rez-de-chaussée ou 2ème sous-sol
• Connectivité : Fibre optique disponible

Techniques :
• Système de renouvellement d'air (pulsion/extraction)
• Système de chaud ou froid (introduction)
• Tableau électrique 63A
• Ligne fibre optique

Idéal pour :
• Stockage de marchandises lourdes ou volumineuses
• Stockage de vins et boissons
• Stockage d'œuvres d'art
• Stockage d'archives
• Stockage de mobilier, accessoires
• Self storage

Adresse
Route des Fayards 280-282
1290 Versoix
Sur la carte
CHF 5'874.-
Agent immobilier
Jean-luc Casini
Contactez le courtier